2107-BOC-01
2107-BOC-04
2107-BOC-05
2107-BOC-06
2107-BOC-07
2107-BOC-09
2107-BOC-10
2107-BOC-11
2107-BOC-12
Photography by Greg Morris courtesy of TriStar Construction

Blue Owl Capital - Twin Stairs

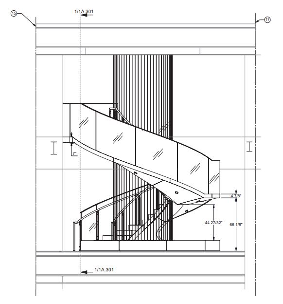
Two identical curved stairs for Blue Owl Capital in Manhattan. The steel carcass was fabricated out of discrete modules assembled to wrap around a spring loaded tension cable system and clad in FRP. A Terrazzo walking surface is inlaid with bronze traction strips and the handrail is wrapped in leather.

Architect: Gensler
Contractor: TriStar Construction